top of page
This site was designed with the
.com
website builder. Create your website today.
Start Now
FARAH FAHMAWI
HOME
MY RESEARCH
ARCHITECTURE
HEALTHCARE DESIGN
COMMERCIAL DESIGN
HOSPITALITY | RESIDENTIAL DESIGN
EDUCATIONAL DESIGN
INTERIOR DESIGN
CONTACT
Folder
More
Use tab to navigate through the menu items.
ARCHITECTURE
HEALTHCARE DESIGN
COMMERCIAL DESIGN
HOSPITALITY | RESIDENTIAL DESIGN
EDUCATIONAL DESIGN
Cat B Fitout - Workplace Offices Project
This Workplace offices Project is Fitout CAT B+ running across 3 floors in Canary Wharf.
- Stage 3 to Stage 5
Cat B Fitout - Workplace Offices Project
11th Floor Plan
Cat B Fitout - Workplace Offices Project
13th Floor Plan
Cat B Fitout - Workplace Offices Project
14th Floor Plan
Cat B Fitout - Workplace Offices Project
Open workspace
Cat B Fitout - Workplace Offices Project
Typical Corridor design
Cat B Fitout - Workplace Offices Project
Entrance area
Cat B Fitout - Workplace Offices Project
Cat B Fitout - Workplace Offices Project
Joiney Details
The Pickle Factory - London, Bermondsey
the project is Fitout CAT A+ going across 4 floors -
- Stage 4 and 5 .
The Pickle Factory - Bermondsey
The reception area
The Pickle Factory - Bermondsey
Ground floor
The Pickle Factory - Bermondsey
The First Floor
The Pickle Factory - Bermondsey
Typical Meeting Rooms
The Pickle Factory - Bermondsey
Atrium elevation and details.
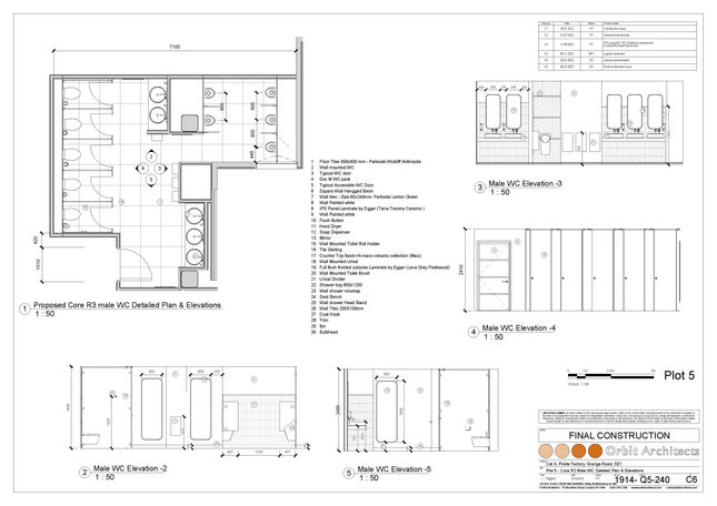
The Pickle Factory - Bermondsey
Typical Toilet design
Cat B Fitout - Workplace Offices Project
Cat B Fitout - Workplace Offices Project
Ground Floor Plan
Cat B Fitout - Workplace Offices Project
Third Floor Plan
Cat B Fitout - Workplace Offices Project
Third Floor RCP
Cat B Fitout - Workplace Offices Project
Meeting rooms and Booths Design
1/40
bottom of page